Menu

Trade center of Iran national industries

 Because of special importance at national and international aspects, the collection being designed while being mass index, should designed in sight of futuristic concepts and universal patters and especially for the sake. Factor, should have special face power. (Middle consoled mass at commercial site)

 

Ecological parts and light absorption of space

–          Light radiation direction was effective on direction of residential blocks.

–          Rising and coming down at commercial bulks is a factor on good light absorption spaces and it makes a good situation on the landscape.

–           Locating the green septum at western side of the collection is the suitable covering against unfavorable winds.

–          Considering the green house and usage of the yard at commercial and residential stories (refer to related sections), increase the finesse and space variety at the inside and faces while considering ecological issues.

Commercial and office spaces of collection:

 

–          The spaces didn’t have separated from each other and at any bulks of low stories, shops and at 3terminal stories have located offices.

–          Conformity of dividing planes with spatial structure of masses is important case which increases the out and inner versatility of building and cause its architectural identity.

–          Considering the moving line, inner circulation and good sight into collection site and having good sight and high spaces profit from designing commercial planes.

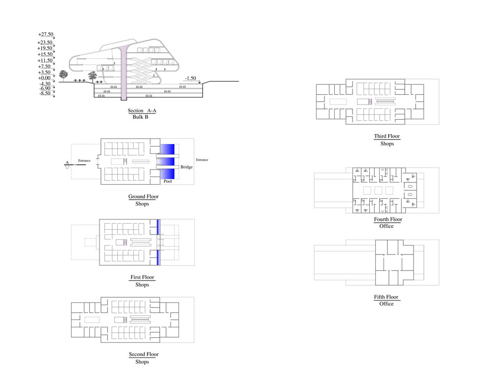
Taking into account the installation cases and ensuring the numbers of desired units of the project, the height of commercial stories has been considered 4 meters, and only at the north bulk of the collection, the highest height at tip of arch reaches to 27.5 m because of sinking bulks into the ground in height 1.5 m (because of ecological matters) and at rest cases it was 25m or lower. The numbers of shops and offices are mentioned beside planes of stories

 

Ideas:

–          First of all at designing commercial area, the case of exteriority and at residential complex, the aspect of its exteriority has been considered green space around commercial collection and inner area at residential site, which has surrounded by apartment blocks, indicate for the case.

–          At other stage, because of total lines of extensions site at highway edge and the way of occupying and good dividing of site after doing multi sketches, the result is a liner organizing which necessary spaces are defined at one spatial balance; so this way of function is considered at residential collection and 42 degree rotation has done in order to maximum use of south light.

–          Adjacent of site with FATH highway which is symbol of fast move and speed, has effective on extension of north edge bulk and  frame lines of fraction face, into the bulk, make possible the perception and looking into the complex.

 

Locating the complex near the airport, have been an important factor at shaping bulks

 

–          First there was possibility of bird sight into collection, because of collection importance, index bulks with perspective to future has been considered.

–          The way of rising and coming down of airplanes at adjacent to the site, while conforming around activities.

Of course, it’s to be noted that parallelism of mentioned spaces at this structure have been considered.